2185:MS トライベッカ神宮
| 賃料 | 5.4万円 |
|---|---|
| 共益費・管理費 | - |
| 所在地 | 宮崎市南花ケ島町 |
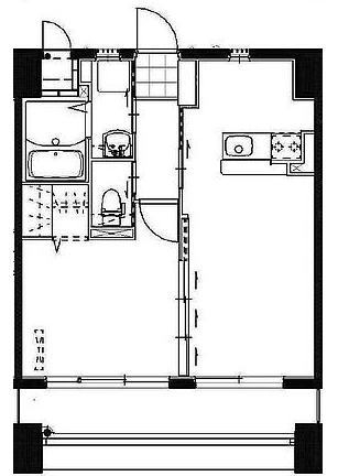
| 間取 | 1LDK |
| 総戸数 | 26戸 |
| 面積 | 40.86m²(12.36坪) |
| 築年月 | 2014/03 |
| 敷金 | 1.5ヶ月 |
|---|---|
| 礼金 | - |
| 保証金 | - |
| 建物構造 | 鉄筋コンクリート造 |
| 所在階 | 3階/7階建 |
| 学区 | 小学校区:大宮小学校 600m 中学校区:大宮中学校 1300m |
| 取引態様 | 仲介 |
| 更新 |
| 敷引・償却 | - |
|---|---|
| 火災保険 | 要加入- |
| 保証会社 | |
| 駐車場 | 空有4,950円 |
| 諸費用 | |
| 入居時期 | 2025年12月中旬 |
特色
給湯・シャワー、エアコン、オートロック、エレベータ、バストイレ別、室内洗濯機置場、洋室、二階以上、ウォシュレット、追焚バス、CATV対応、インターネット使い放題0円、独立洗面台
コメント
宮崎神宮駅近く
省エネマンション(高効率ガス給湯・ペアガラス・節水型水栓・省エネエアコン)








